Developer wants third phase with another 150 houses north of Dukes Meadow Drive
18/06/2025

Manor Oak Homes already has permission for 192 properties
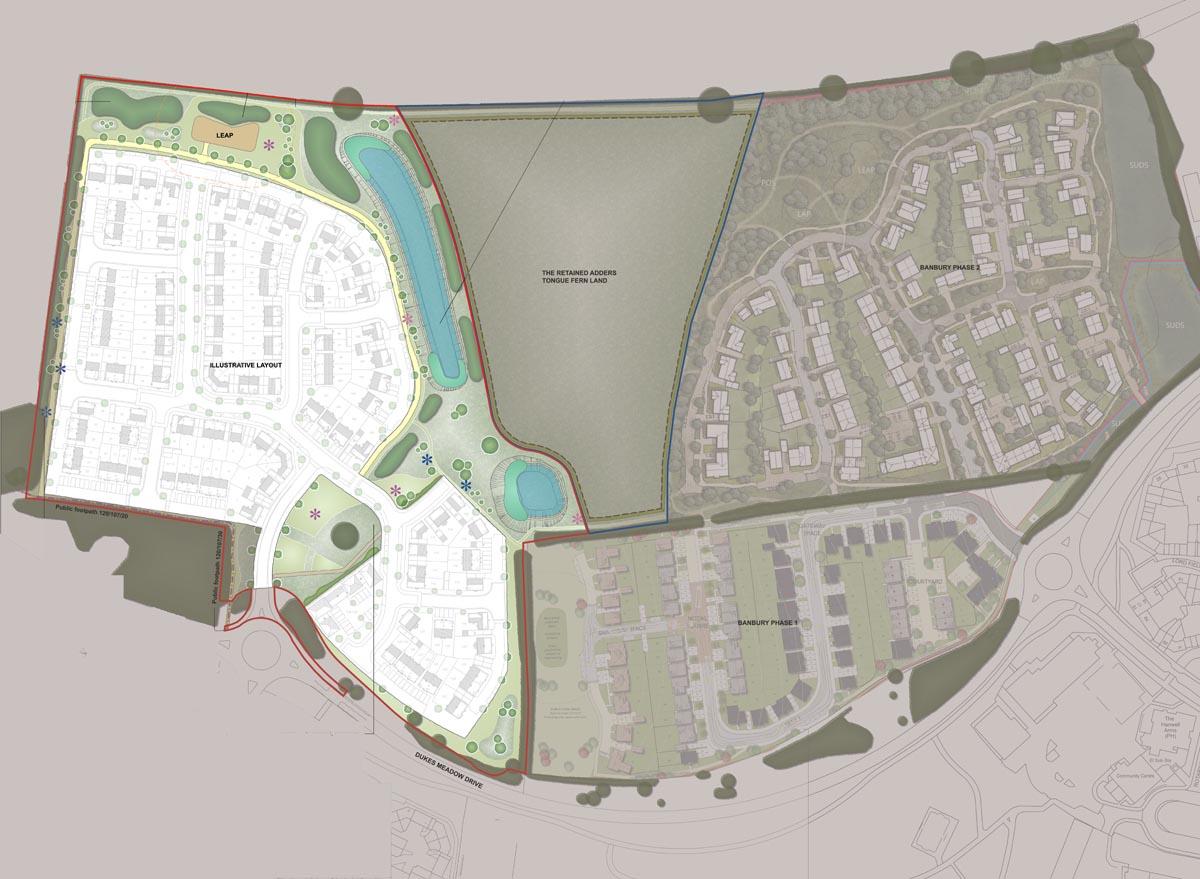
A developer who already has planning permission for 192 houses on land to the north of Dukes Meadow Drive in Banbury now wants to build a further 150 properties on adjacent land.
Manor Oak Homes with a Mr and Mrs Donger have submitted an outline planning application for what they describe as the third phase of their proposed development.
In May 2024 permission was granted for 78 homes opposite Lapsley Drive. A further 114 were rejected last August, but then allowed in January this year following implementation of the government’s new housing targets.
In their latest submission the applicant notes Cherwell District Council’s current land supply figures are below the official target, meaning their must be a presumption in favour of building. They wrote: “Following the success of the first two phases, particularly helped by the applicant’s constructive working with and strong endorsement by officers, this application is submitted to secure a logical additional phase to the committed 192 homes at the site at a point when the district’s housing land supply is in a perilous position.”
With the Cherwell district there are 8,000 properties where planning permission has been granted. If construction began on just under two-thirds of these the council would be able to demonstrate it was achieving its target and take control of planning decisions. Sites where construction hasn’t started don’t count towards the target.
The two previously agreed Manor Oak Homes sites are amongst the 8,000 where building hasn’t yet begun.
Their latest application proposes up to 105 market dwellings and up to 45 affordable homes. They assert that the development would help support the local economy and say the highways impact of the proposed development will be adequately accommodated by the existing road network.
The covering letter concludes: “On this basis and allied with the Council’s significantly deficient housing land supply it is concluded that the application proposal must benefit overwhelmingly from the presumption in favour of sustainable development described by paragraph 11(d) of the NPPF [National Planning Policy Framework]. It should therefore be approved without delay.”
Published: by the Banbury FM News Team